TANTISSIME OCCASIONI presso l’Agenzia perla Immobiliare di Mara Gianforte.
Perla Immobiliare propone un’ampia selezione di immobili privati, d’impresa e case vacanze con piani di comunicazione promozionale personalizzati. Inoltre offre una consulenza completa attraverso l’uso di strumenti tecnici a garanzia di una visione del mercato a 360° e numerosi servizi di assistenza tecnico-legale altamente professionale in grado di supportare il cliente in tutte le fasi di compravendita e locazione.

L’agenzia Perla Immobiliare propone in locazione a Tortoreto, luminoso Appartamento al piano quarto di 50 mq circa, composto da soggiorno con angolo cottura, camera matrimoniale, camera singola, un bagno con doccia e finestra, oltre terrazzo ampiamente abitabile.
Completa di arredo cucina tavolo sedie, divano letto, letto matrimoniale armadio, Tv, lavatrice, lavastoviglie, condizionatori.
Localizzato in posizione tranquilla a circa 400 mt dal mare e vicinissima a tutti i principali servizi.
L’attenta e puntuale applicazione di ogni norma di Legge che regolamenta il rapporto fra cliente e agenzia nonché tutti i complessi adempimenti che governano i negoziati, sono garantiti oltre che da un costante e preciso aggiornamento delle Leggi in materia, da uno staff di consulenti esterni di provata serietà ed esperienza.
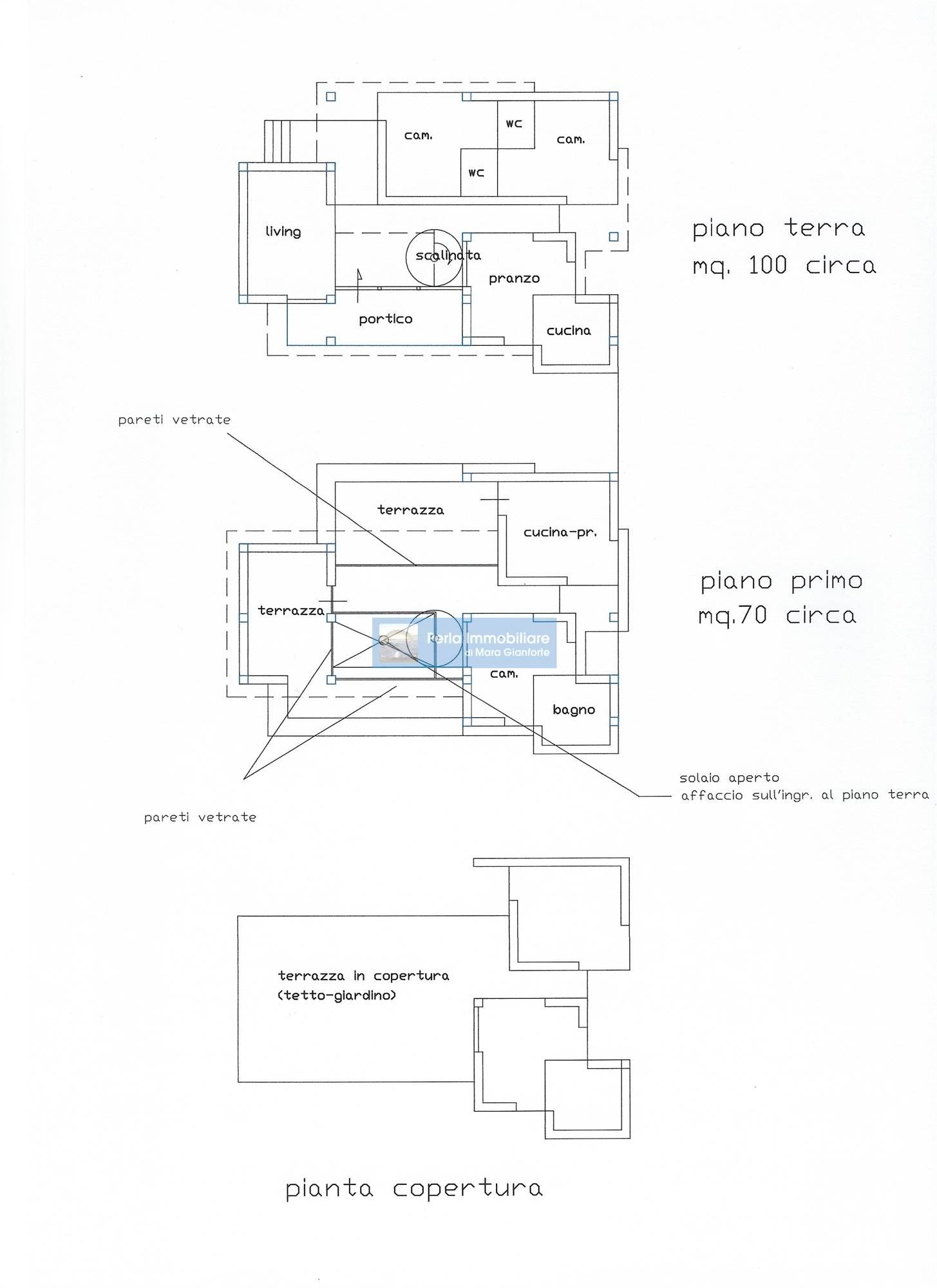
L’Agenzia Perla Immobiliare propone in vendita a Spinetoli, Lotto di Terreno Edificabile a destinazione residenziale, delle dimensioni di circa 1265 mq con Idf 2,5 mc/mq (anche frazionato) Consente la realizzazione di una palazzina adibita a civile abitazione, oltre il piano seminterrato da adibire ad autorimesse; oppure 3 villini o villette a schiera di 200 mq ognuno.
Possibilità di visionare progetti.
Ubicato in posizione residenziale centrale e pianeggiante, fornito di accesso sia dalla Strada Statale Salaria sia dalla Strada Comunale Spinetoli.
Perla Immobiliare
di Mara Gianforte
Via De Gasperi 13
64018 Tortoreto (Te)
Tel 3425268778
Mail perlaimmobiliaretortoreto@gmail.com
sito: https://perlaimmobiliaretortoreto.com/it/
facebook : https://www.facebook.com/PerlaImmobiliareTortoreto
instagram: https://www.instagram.com/perlaimmobiliaretortoreto/




















